LOFT
LOFT : garare remodeler
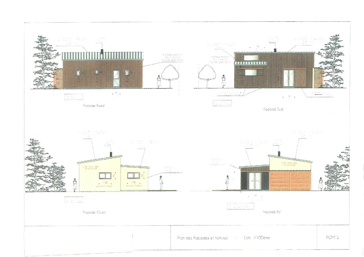
A la base, ce projet d’habitation ressort du rachat d’un grand garage en parpaings et toiture fibrociment.Suite à la déconstruction, nous avons remodelé les volumes de cet espace en remontant la toiture et en créant une extension bois sur la dalle déjà existante.
Toujours fidèle à nos valeurs d’écoconstruction, les parties en murs parpaings ont été isolés en ITE extérieur PAVATEX 60mm (Panneaux Biosourcés Laine de bois) avant d’être habillées du bardage douglas.
La pose d’une toiture en panneaux sandwichs de 140mm d’épaisseur vient optimiser la thermie de ce futur LOFT.









