Chalet cowboy
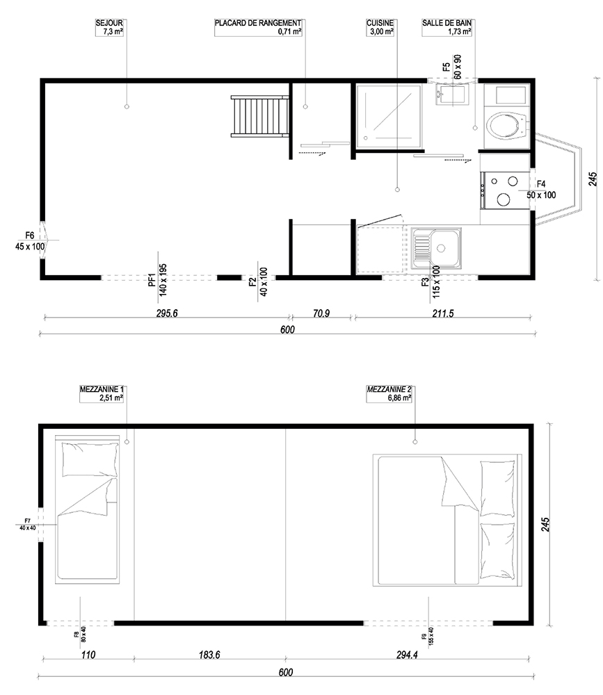
Chalet COWBOY 35m2
Ce chalet de 35m2 est, pourrait-on dire, ETHICOLOGIQUE. Leurs propriétaires le voulaient autonome et écologique. Nous avons respecté les valeurs de ces adorateurs des grands espaces, des terres des Amérindiens.
Cette charpente extérieure soutenue par des troncs de châtaigniers lui donne ce style cabane des bois ; accentué par son intérieur aménagé principalement de meubles sur mesure ainsi que sa table en plateau brut poncé et huilé. Un petit poêle à bois suffit à le chauffer, deux panneaux solaires sur batterie pour la lumière et les installations PC et mobiles.Une toilette sec et une petite phytoépuration le rendent propre et presque autonome puisque seule l’eau courante est sur le réseau.Nous aurions pu pousser l’habillage extérieur en planche naturelle, hélas les règles urbanistiques de la commune ne nous l’ont pas permis.




















